-
대구 신세계 빌리브 라디체 아파트 분양권 15% 파격할인!카테고리 없음 2025. 5. 28. 18:46반응형

대구 본리네거리 빌리브 라디체 대구 부동산 시장에 새로운 바람이 불고 있습니다. 신세계건설이 선보이는 프리미엄 주거 브랜드, ‘빌리브 라디체’가 그 주인공입니다.
아파트와 오피스텔을 아우르는 대단지 복합 주거공간으로서, 입지부터 시공까지 모든 면에서 기대를 모으고 있죠.
“대구에서 제대로 된 라이프스타일을 찾고 있다면?” 이 글을 절대 놓치지 마세요.
한정된 공급, 빠르게 진행 중! 늦기 전에 지금 바로 확인해보세요!신세계건설이 만든 프리미엄 주거, ‘빌리브’의 진화
‘빌리브 라디체’는 신세계건설이 선보이는 새로운 주거 브랜드입니다.
이미 전국적으로 ‘빌리브’ 브랜드가 높은 신뢰를 받고 있는 가운데, 이번 대구 프로젝트는 한층 더 업그레이드된 스펙으로 주목받고 있습니다.
단순한 거주 공간이 아닌, 생활의 품격을 높여줄 수 있는 공간으로 기획된 것이 특징이죠.
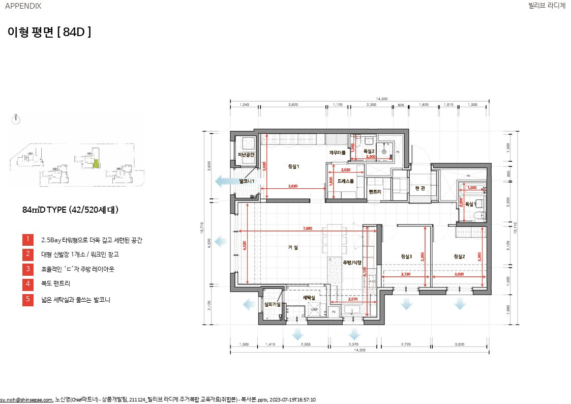
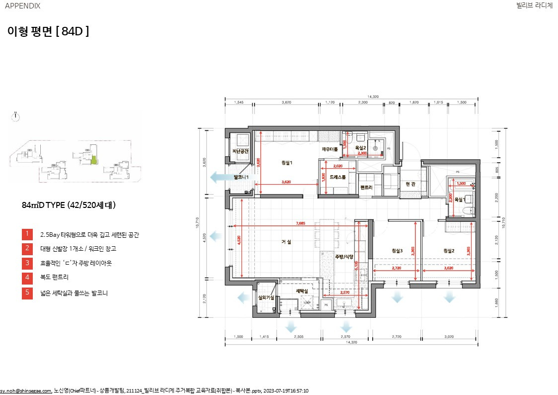
입지와 규모: 대구 달서구, 606세대 대단지
위치는 대구광역시 달서구 본동 760번지 일원.
아파트 520세대와 오피스텔 86실로 구성된 대규모 복합 단지입니다.
생활 인프라, 교통, 교육환경이 모두 잘 갖추어진 입지로, 실수요자뿐 아니라 투자자들에게도 주목받고 있습니다.
시행, 시공 모두 믿을 수 있는 브랜드
시행은 ‘신한자산신탁㈜’, 시공은 ‘신세계건설㈜’, 위탁은 ‘㈜레이먼드인베스트’가 맡아 전문성과 안정성을 갖춘 프로젝트입니다.
이러한 든든한 조합은 향후 입주민의 만족도와 안정적인 관리에도 긍정적 영향을 미칠 것으로 기대됩니다.e-모델하우스 제공으로 실감나는 공간 체험
공식 홈페이지를 통해 ‘e-모델하우스’를 제공합니다.
현장을 방문하지 않아도 세대 내부 구조와 인테리어, 커뮤니티 시설 등을 3D로 체험할 수 있어 시간과 장소의 제약을 크게 줄여줍니다.












단지 구성 및 시설 안내
다양한 커뮤니티 공간과 조경 설계가 함께 어우러져, 주거 만족도를 극대화합니다.
공용 커뮤니티 시설, 보안 시스템, 스마트홈 시스템 등 최신 트렌드를 반영한 설계로 입주민의 삶을 더욱 풍요롭게 해줍니다.









단지 개요 요약표
항목 내용 위치 대구광역시 달서구 본동 760번지 일원 규모 아파트 520세대, 오피스텔 86실 시행 신한자산신탁㈜ 시공 신세계건설㈜ 위탁 ㈜레이먼드인베스트 Q&A
Q1. 빌리브 라디체는 어떤 브랜드인가요?
A. 신세계건설의 프리미엄 주거 브랜드 ‘빌리브’ 시리즈 중 하나로, 품질과 디자인을 겸비한 고급 주거 단지입니다.Q2. 대구 달서구 입지는 어떤 장점이 있나요?
A. 교통 접근성, 생활 편의시설, 학군 등 실거주 및 투자에 모두 적합한 조건을 갖춘 입지입니다.Q3. 공급은 언제 시작되며 어떻게 분양 받나요?
A. 공식 홈페이지를 통해 모델하우스 오픈 일정과 분양 절차가 안내되며, 사전청약도 가능합니다.Q4. 오피스텔과 아파트의 차이는 무엇인가요?
A. 오피스텔은 주거와 업무가 가능한 구조로, 소형 가구나 투자용에 적합하고, 아파트는 가족 중심의 거주형 공간입니다.Q5. 온라인으로 세대 내부를 볼 수 있나요?
A. 예, e-모델하우스를 통해 가상으로 공간을 체험할 수 있습니다.정리하며
‘빌리브 라디체’는 단순한 주거 공간을 넘어, 새로운 삶의 방식을 제안합니다.
프리미엄 라이프스타일을 찾는 분들에게 꼭 추천드리고 싶은 프로젝트입니다.
대구 빌리브 라디체 아파트 분양권 자세한 정보를 상담 받으실 분들은 아래 전화번호로 연락 주시면 친절히 상담 도와 드립니다. 할인분양 진행 중! 지금이 내집마련할 절호의 기회를 놓치지 마세요!
반응형